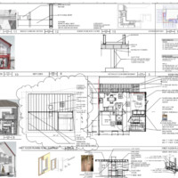
The project sought to convert a historical 1880 jerkinhead roof barn into a three bedroom family unit. Architects observed and restored the building to maintain the character of the era. The bathrooms were stacked and separated the public spaces from the private ones. Boards and battens were removed to move the frame and build a new foundation because the existing one was deemed unsalvageable (see gallery images). Heat pumps were used for heating and cooling with natural light from east to west.
The project offered the opportunity for a viable rentable unit in the East Hill area in Ithaca, NY, a historic district with restricted zoning. The Ithaca Landmarks Preservation Commission approved the design.
Location: Ithaca, NY
Design Award Year: 2024-’25
Award Category: Residential Single Family Detached
Project Type: Conversion & Rehabilitation
Award Level: Citation





























